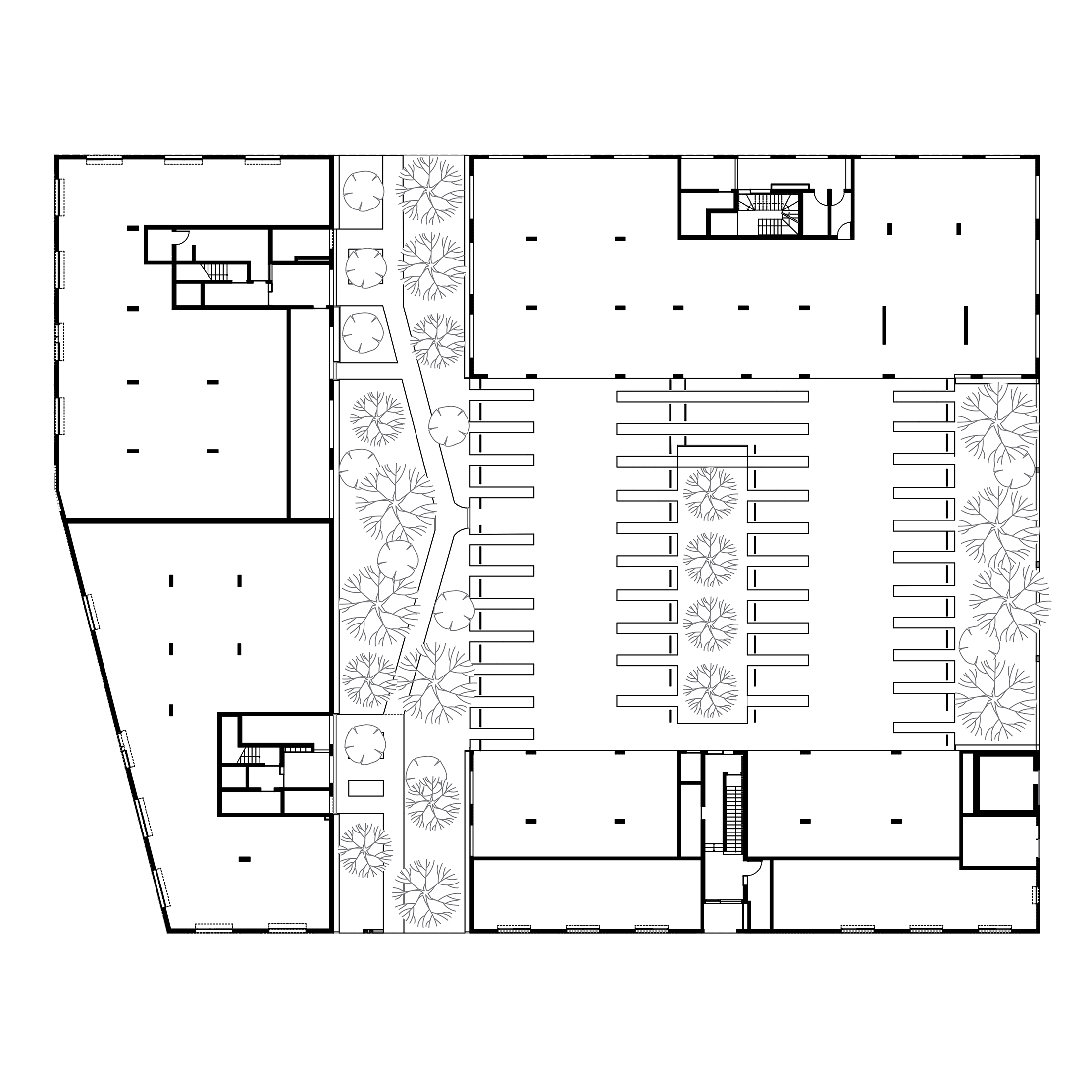
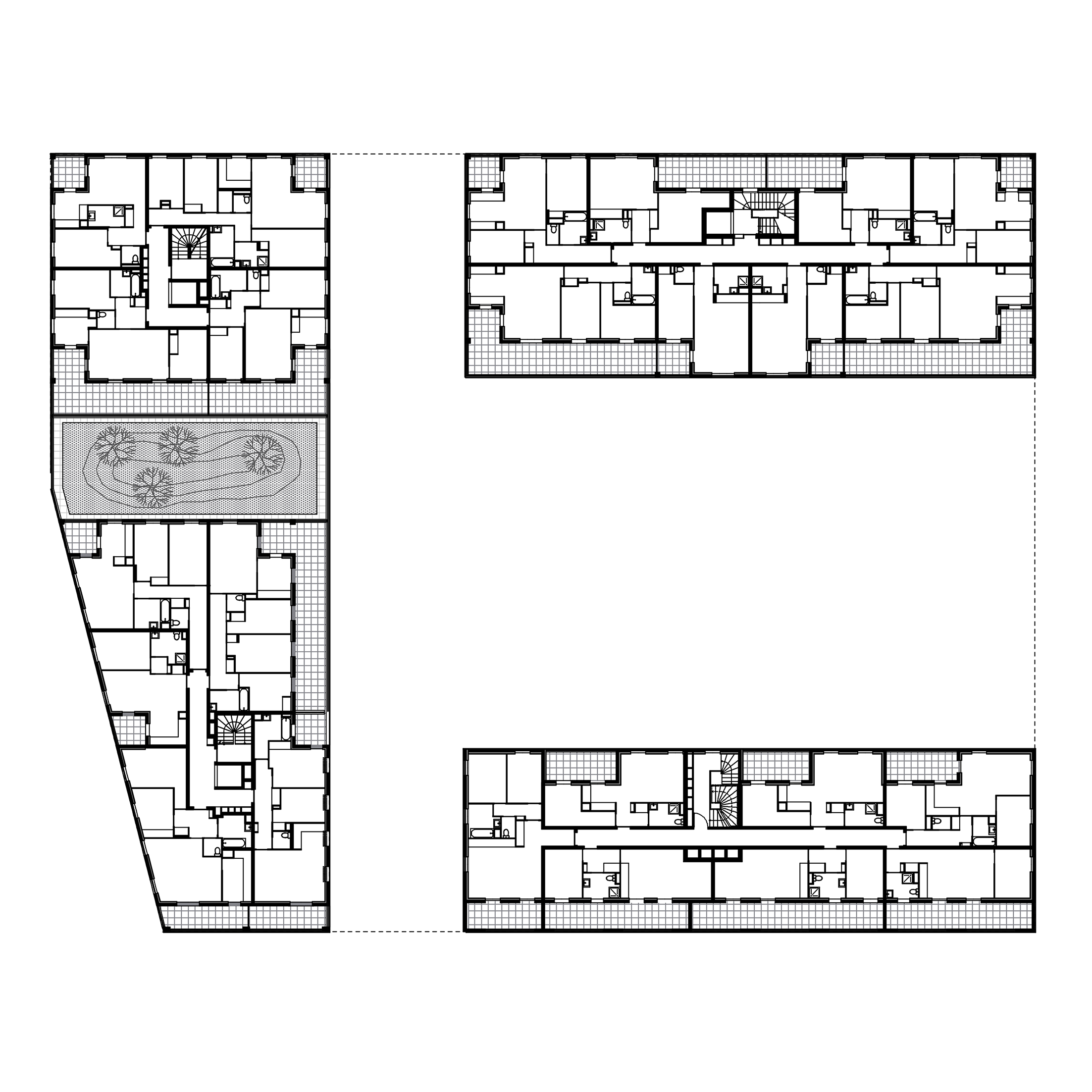
86 logements et des commerces à Grigny – Lot D1
Livraison 2025
Programme
85 logements collectifs en accession privé, deux commerces et un parking de 85 places, Lot D1 ZAC COEUR DE VILLE
Maître d’ouvrage
GROUPE GAMBETTA
Equipe MDNH, ALYOS
Aménageur GPA / AUPA-URBA
Site ZAC Cœur de Ville, Grigny (91)
Mission DCE
SDP 5340 m² logts
SHAB 4947 m² logts
Coût 8.8 M€HT
Photos T. VOISIN
Performances environnementales
NF HABITAT HQE
RT2012 -20%
Calendrier Livraison 2025


































